
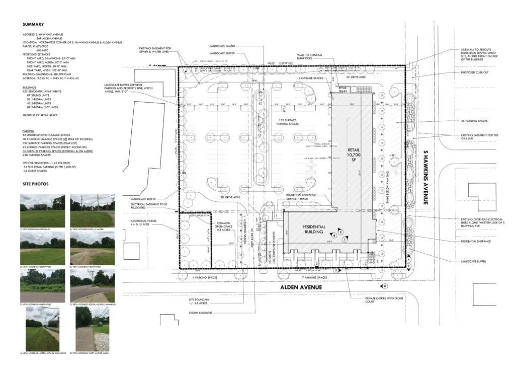
Terry White was the Senior Designer of the Modular Mixed Use Development project while working at an architectural firm in Northeastern Ohio. It was designed as an elegantly composed mixed-use development utilizing modular construction including 152-unit market-rate apartment units and approximately 10,700 sf of retail. This is a five-story residential building over two floors of retail, parking and townhome units. The building will sit on a 58-car garage. Anticipated retail tenants was intended to include service and small shop retailers. The residential unit mix includes studios, one-bedroom flats, two-bedroom flats and two-bedroom two-story units. The building is approximately 252,253 sf including the garage, excluding the balconies and two-story spaces. This project was designed in 2018.
PROJECT NAME: Modular Mixed Use Development
LOCATION: Akron, OH
SIZE: 252,253 SF
STATUS: Schematic Design Phase




